Materiaali: kuusi | Paino: 875kg | Sisusta niin kuin haluat | Pinnoita niin kuin haluat |
Piharakennus 5
1730€
Tuotteen ominaisuudet:
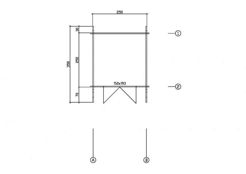
- ulkomitat: 250 cm × 250 cm
- seinät 44 mm paksua kuusta
- katto ja lattia 19 mm
- lukittava lasielementillä varustettu pariovi, koko 1300 × 1900 (mahdollinen umpiovi)
- mukana kokoamiseen tarvittavat ruuvit ja naulat
- kokoamisohjeet
Lisäpalvelut: kuljetus, asennus.
Toimitus puuvalmiina toimitussarjana.
PALAHUOPA EI SISÄLLY HINTAAN
