Materiaali: kuusi | Paino: 1160kg | Sisusta niin kuin haluat | Pinnoita niin kuin haluat |
Piharakennus 3
2520€
Tuotteen ominaisuudet:
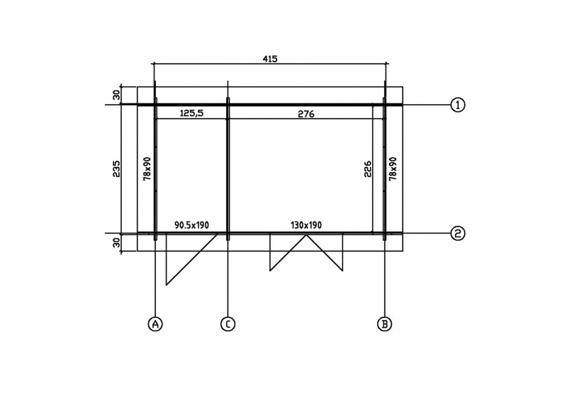
- ulkomitat: 415 cm × 235 cm
- seinät 44 mm paksua kuusta
- katto ja lattia 19 mm
- lukittava lasielementillä varustettu pariovi, koko 1300 × 1900 (mahdollinen umpiovi)
- lukittava ovi, koko 905 × 1900 (mahdollinen lasielementti)
- kaksi avattavaa lasielementti-ikkunaa, koko 765 × 818
- mukana kokoamiseen tarvittavat ruuvit ja naulat
- kokoamisohjeet
Lisäpalvelut: kuljetus, asennus.
Toimitus puuvalmiina toimitussarjana.
Palahuopa ei sisälly toimitukseen menekki 6pkt.Lisähintaan 180€.
