Kaminat 25.35.45KW
619€
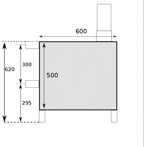
25kw Kaminan toimitussisältö:mitat leveys 400mm,korkeus 500mm.syvyys 6oomm.paino 38kg.2M Piippu(halkaisija 110mm)Liitos kappaleet tynnyriin 50mm 2kpl.Valurauta arina.Hinta 619€.
35kw Kamina toimitussisältö: mitat leveys 400mm,korkeus 500mm,syvyys 600mm.paino 32kg.2M Piippu (halkaisija 110mm)Liitoskappaleet tynnyriin 50mm 2kpl.Vaihoehtoisesti tilattaessa 60mm tai 75mm.Hinta 649€.
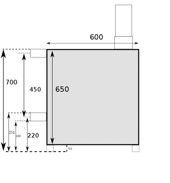
45kw Kamina toimitussisältö:mitat leveys 450mm,korkeus 650mm,syvyys 600mm.paino 45kg.2M piippu (halkaisija 150mm) Liitoskappaleet tynnyriin 60mm.Vaihtoehtoisesti tilattaessa 75mm.Hinta 849€.
Letkun lähdöt paikat kaminassa voidaan toiveiden mukaan muuttaa kaminassa oikealla tai vasemmalle sivulle standartissa ne ovat kaminan takana.
Standart väri kaminan ulkokuori alumiini.Etupaneeli musta.
Kaminoilla on 2v Takuu.
Lisävarusteet kaikille kaminoille:
Lasiluukullinen ovi Hinta 50€.
Kaminan ulkokuoren maalaus 50€
Piippu lisämetrit 35€/M
Piipun kuumasuoja 65€
Kipinäsuoja 55€
Hintoihin lisääntyy rahti kysy edullinen kotiin toimitus.
