Materiaali: KUUSI | Paino: 1400kg | Halkaisija: 240 | Henkilömäärä: 8 |
Tynnyrisauna 240x500cm ovaali Kuusi terassilla
7300€
Tuotteen ominaisuudet:
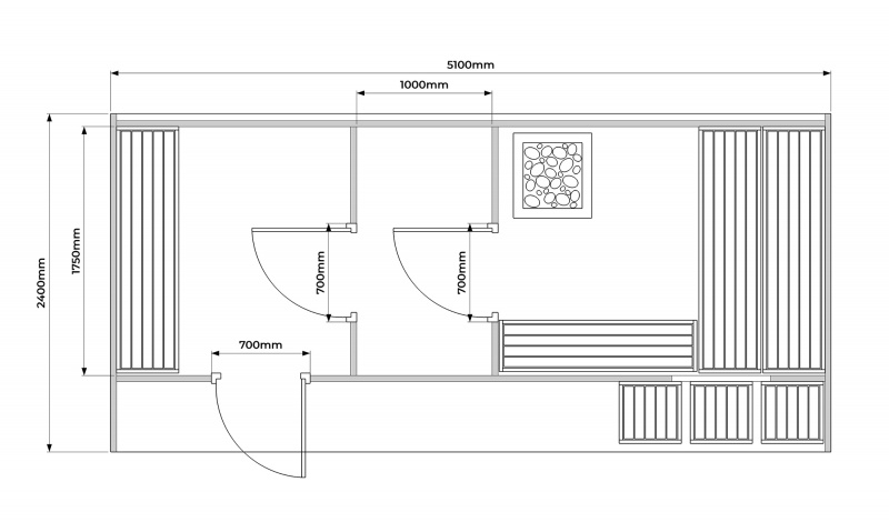
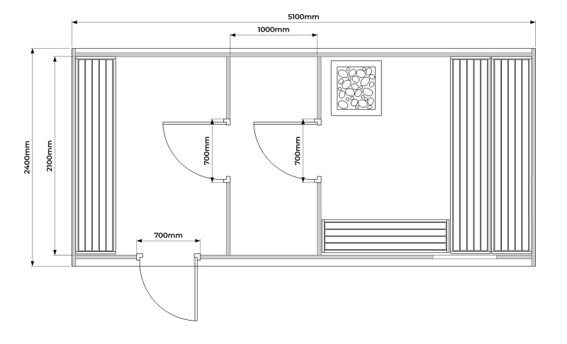
- ulkomitat: 240cm × 500 cm
- sisätilan korkeus: 210 cm
- etuseinässä pyöreä ikkuna
- lukittava ulko-ovi lasilla
- löylyhuoneen ovi lasia
- materiaalina kuusi, paksuus 42 mm
- lattiaritilät
- kaksiportaiset L-muotoiset lauteet .penkki pukuhuoneessa
- sauna on sisältä päin käsittelemättä ulkopuoli käsitelty haluamallasi sävyllä värikartasta
- lasiluukkuinen kiuvas harvia tai verkkokiuvas+kiuvaskivet
- kiukaan suojat
- vedenlämmitin rst
- lattiassa reika pesuvesien poistolle
- savupiippu ruostumatonta terästä, asennettava itse (katossa läpivienti piippua varten)
- ilmanvaihtoventtiilit
- vesikatteena palahuopa väri musta, mukana tippalistat
- kolme ruostumattomasta teräksestä valmistettua vannetta
Sauna kannattaa asentaa sepelipohjalle ja laittaa tukijalkojen alle pihalaatat(6 kpl)
SAUNA TOIMITETAAN TÄYSIN KOOTTUNA,
SAMA SAUNA LÄMPÖKÄSITELTYKUUSI 8460€
SAMA SAUNA ILMAN TERASSIA SAMAT HINNAT
LISÄVARUSTEET:
- sähkökiuas
- Saunan ja lauteiden ja pukuoneen penkkin käsittely laudesuojalla käsittely 250€
